Years ago, hundreds of JAP drawings on microfilm were found in a street in Wolverhampton, probably after Villiers took over JAP and then got taken over themselves. The microfilm was copied for the Vintage Motor Cycle Club library in the UK. Someone there made the list of motorcycle type drawings that is posted after the drawings below. About the same time, a digital copy of the microfilm was made, and Loose Fillings has a copy on two CDs from which these drawings are posted.
The following seem to be the most useful available drawings of early big twins – J/KTO/R etc; future postings may cover the speedway engines and the post-war ‘Mk1’ V-twin used in Coopers. Some of these drawings will also be applicable to the L series engines which were mainly 1096cc and used in Morgan threewheelers. These drawings are for pattern making and machining of castings; unfortunately no factory drawings of small parts are part of this set.
Click on the coloured link to download a pdf file of a drawing.
Note that some drawings were modified and reused with a new part number. The first number is that of the file on the CDs. The second is the JAP drawing number .
We cannot supply copies of drawings other than those you can download here.
If you want drawings on the VMCC list please ask them as we cannot supply copies.

Above: Timingside crankcase 1924

Above: Timingside crankcase 1936 (probably JTOS 8/80)

Above: Driveside crankcase 1924

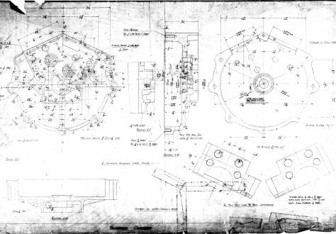
Above: Driveside crankcase 1936 (probably JTOS 8/80)

Above: Gear Cover

Above: 8-30 HP 85mm Cylinder 1925

Above: Cylinder head front

Above: Gear side crankcase

Above: Pulley side crankcase

Above: Gear cover

Above: Bevel drive gear cover

Above: Cylinder head
Above: Driveside crankcase 1936 (probably JTOS 8/80)

Above: Dirt Track Cylinder Head 1932 (modified 1934 possibly for 8/80)

Above Cylinder Head (probably K/JTOR)
The following is a list of big-twin motorcycle type drawings held by the Vintage Motor Cycle Club library on microfilm. It would seem that some drawings on the CDs held by Loose Fillings are not be on the VMCC list (for example, those for speedway singles) and some on the VMCC list are not on the CDs.



Click to enlarge VMCC JAP Drawing List
